
Want to own a home in Northfield?
You might think homeownership is out of reach because house prices are so expensive. We work with local workers and families who may not qualify for a traditional mortgage or have a large down payment. Our tailored education, support, and down payment assistance ensure you can purchase a home with long-term affordability and security. With Rice County Habitat, you are not just buying a house but investing in your future and building generational wealth.
For any homeownership opportunity below, click HERE for more information.

We are building two duplexes (a total of four units) on Sumner Street in Northfield in the spring of 2026. Each unit will have four bedrooms.



Do you need an accessible two bedroom home in Northfield? We've got the unit for you! Call Erin today to set up a time to talk about this opportunity!
507-323-5167 or click HERE for more information
Want to own a home in Faribault?
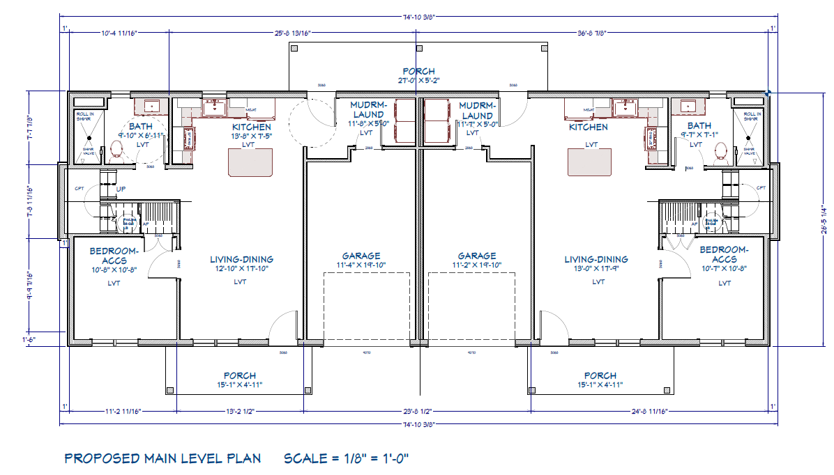
South Central College's Carpentry Program students will build another home in Faribault starting in the fall of 2025. Here's a picture of the plan. This house will have up to six bedrooms!

Click on any image below to see picture of the six properties currently under construction in Faribault.
Electrify your home! But how? We can help!
What's in it for me?
(for income qualified homes/while funds are available)
- A new electric furnace/AC to replace an old system at little or no cost!
- An energy efficient system that will cost less to run than existing (20-year-old) furnace
- Assistance in navigating the process from a local service organization
STEP 1:
GET A HOME ENERGY AUDIT
An audit will tell you how to improve the energy efficiency of your home, and usually includes free LED lightbulbs, weather stripping and low-flow showerheads. Free visits MAY be available to income qualified households (<80% AMI) as set by the MN Department of Commerce.
| Household Size | Income Limit |
|---|---|
| 1 | 66,300 |
| 2 | 75,750 |
| 3 | 85,200 |
| 4 | 94,650, |
| 5 | 102,250 |
If you have Xcel and/or CenterPoint and reside in Rice County, you may qualify for a visit with ICF.
To schedule with ICF please click the following link OR call their scheduling line at 833-202-3655.
ICF’s Online Scheduling: https://secure.probusinesstools.com/customapps/xcelcnp/portal.aspx
Step 2:
LET US KNOW YOU'VE COMPLETED AN ENERGY AUDIT
Tell us by filling out this FORM and you can request some assistance from a local Rotarian.
Step 3: IMPLEMENT THE SUGGESTIONS FROM THE ENERGY AUDIT WITH THE HELP OF A LOCAL ROATARIAN (Northfield only)
When you fill out the form to let us know you've done an energy audit, you'll have an opportunity to request help from a Northfield Rotarian who will help you decide the next best thing to do in your house. We understand that when you get the energy audit results back you may still be left with questions... like "What do I do now?" or "Who do I call for improvements?" These Rotarians are Rotary Energy Volunteers who can help you navigate the next steps. You'll be connected with one of these volunteers when you fill out the form telling us you've completed the energy audit.









